
Download Specs
 
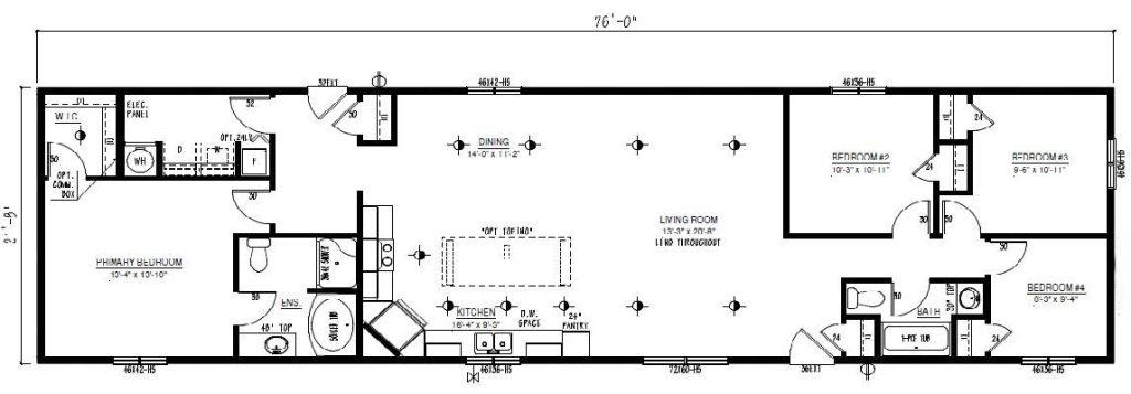
					There is much to cover in this awesome house, but the focal point has to be the fantastic kitchen island, large enough for the whole family to gather ~ maybe even enough room for the neighbors, too! This is a flexible 4-bedroom plan that could be easily converted into a 3 bedroom with family room.