
Download Specs
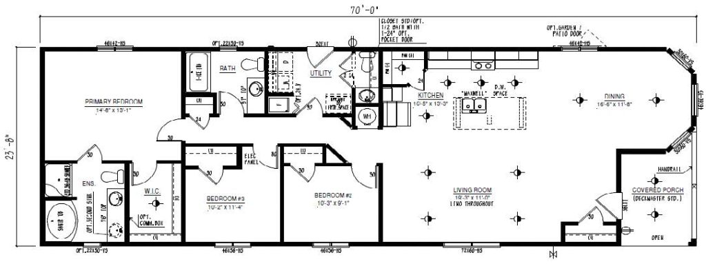
Enjoy your unobstructed view from the windows that wrap around the dining room nook. This popular front porch model offers a bright and spacious open concept with a convenient design.
Square footage of house includes covered deck.