Spring Sale Now On
Schedule time to view show home
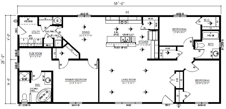
You may also be interested in these similar layouts
25530 – 117 Avenue, Acheson, AB T7X 6C2
Alberta, Saskatchewan, Northwest Territories, East Kootenay
9407 – 163 AvenueGrande Prairie, AB T8X 0B6
Alberta, Northwest Territories, Yukon, BC Peace Country, Northern BC