
Download Specs
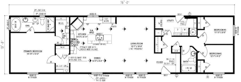
Welcome to our brand new Tuscany show home, where modern elegance meets farmhouse charm. Step into a world of refined comfort, where natural colors and the sleek black hardware and lighting package create a timeless aesthetic. This thoughtfully designed home boasts three bedrooms, two bathrooms and a dream kitchen that is sure to inspire culinary delights. Boasting a gas range and a stunning hood fan that add both functionality and elegance, this kitchen is sure to be a showstopper. This dream kitchen offers an abundance of counter space and cabinets, ensuring that both form and function come together for an unparalleled cooking experience.
As you enter the home, you’ll be greeted by a stylish built-in bench, perfect for keeping your entryway free of clutter. As you make your way past the kitchen, a built-in desk offers a dedicated space for organization and productivity. Whether you use it for meal planning, recipe browsing, or managing household affairs, this thoughtful addition provides a convenience hub for all. In the utility room, countertops have been added above the washer and dryer space to ensure laundry folding is a breeze. You’ll notice an emphasis on natural light when touring the Tuscany home. The Tuscany includes numerous oversized windows to allow natural light to pour into the home, creating a warm and inviting atmosphere.
Quick Possession homes available in our following Communities: Meadows of Morinville.
Tap a photo to explore the image gallery.