
Download Specs
 
					Find out more about Meadows of Morinville on their website.
Welcome to our brand-new Tuscany show home, where modern elegance meets farmhouse charm inside and out. The sleek exterior package features clean lines and striking mono-pitch roof portions, giving this home a fresh modern edge while still feeling timeless and inviting.
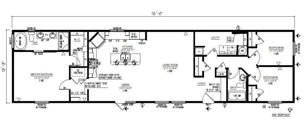
Step inside and you’ll find a thoughtfully designed layout with three bedrooms, two bathrooms, and a dream kitchen at the heart of it all. A gas range and stunning hood fan add both functionality and style, while the natural colors, black hardware, and lighting package create a cohesive, sophisticated look. With abundant counter space and cabinetry, this kitchen balances beauty and practicality—perfect for everything from weeknight dinners to special occasions.
Every detail in the Tuscany is designed for comfort and convenience. A built-in bench at the entryway keeps clutter at bay, while a built-in desk just off the kitchen offers a dedicated space for organization and productivity. The utility room is equally thoughtful, featuring countertops above the washer and dryer for effortless laundry days. Oversized windows throughout flood the home with natural light, creating a bright and welcoming atmosphere in every room.
*The decor colors and exterior package in the Tuscany video/virtual tour below are different than the Tuscany at 90 Heather Lane and 130 Hawthorn Drive.
Tap a photo to explore the image gallery.
You must be logged in to post a comment.