
Download Specs
This uniquely designed plan is brand new this year and available for tours at our Grande Prairie Sales Centre.
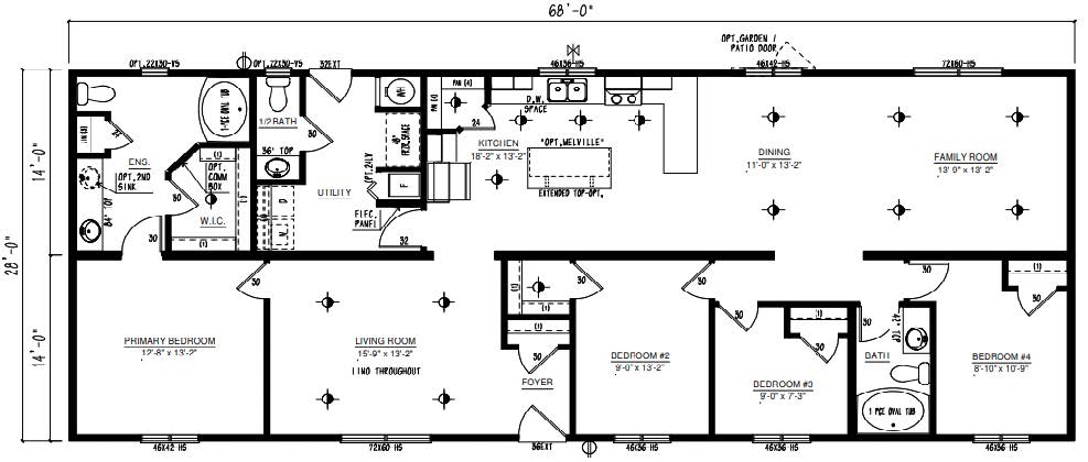
This home balances open concept living with thoughtfully designed separation throughout. The kitchen opens up beautifully to the dining room and living room so you won’t miss a beat while preparing dinner. In the living room you’ll find a gorgeous built-in fireplace perfect for those cozy nights at home.
This plan features the popular living room/family room combination with another flex space on the other side of the kitchen. Use it as a media room or a separate area for the kids to play in their own private space!
Tap a photo to explore the image gallery.