
Download Specs
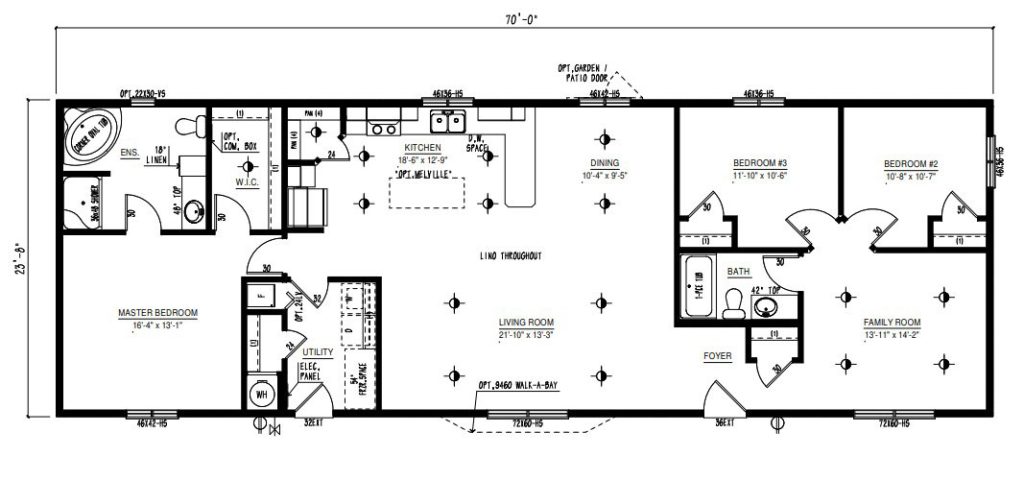
Welcome to the redesigned Langford model, a customer favorite with 1,680 sq. ft. of thoughtfully designed space. This home features three bedrooms, two bathrooms, and a separate family room, offering plenty of room for a growing family. The newly refreshed kitchen is bright and inviting, with crisp white cabinetry, silver hardware, and a spacious peninsula for extra prep and storage.
The primary bedroom is tucked away for privacy and includes a walk-in closet and spa-like ensuite with a walk-in shower, large oval corner tub, and a linen tower for extra storage. Modern lighting, including strategically placed pot lights, enhances the warm and welcoming feel of this home.
Awarded with the prestigious Single Family Home of the Year by the Modular Housing Association, the Langford Show Home embodies excellence in design and functionality, promising an unparalleled living experience.
Tap a photo to explore the image gallery.