
Download Specs
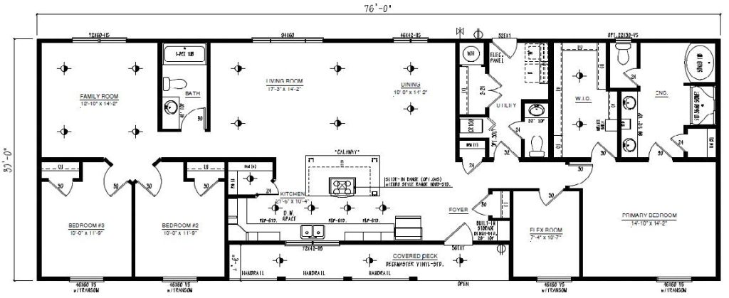
You’ll love this stunning 2280 sq. ft. home packed with modern, contemporary and distinctive features along with an array of possibilities. The Grand Haven offers the space you need to live the life you’ve been dreaming about.
Come home to experience the perfect balance of privacy and open-concept living with the popular living room/family room combination. We’ve even included a flex room with this plan to give you even more space. Turn it into an office with a built-in smart desk or set up your dream crafting station.
After an honest day’s work, soak away your worries in your dream ensuite. We’ve even added dual sinks for you and your partner – so you can tackle your day, not each other while getting ready!
Tap a photo to explore the image gallery.
You must be logged in to post a comment.