Spring Sale Now On
Schedule time to view show home
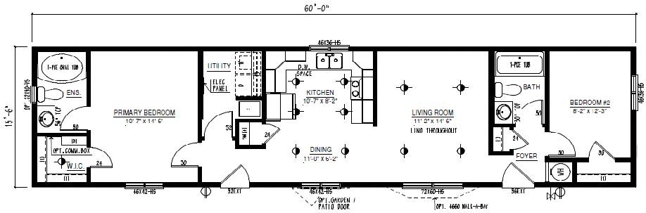
This 960 square foot, budget conscious floorplan is ideal for smaller lots and offers all of the amenities you need.
You may also be interested in these similar layouts
25530 – 117 Avenue, Acheson, AB T7X 6C2
Alberta, Saskatchewan, Northwest Territories, East Kootenay
9407 – 163 AvenueGrande Prairie, AB T8X 0B6
Alberta, Northwest Territories, Yukon, BC Peace Country, Northern BC